羽黒口売家 NEW!
羽黒口売家
| 物件名 | 羽黒口売家 |
|---|---|
| 価格 | 2,500万円 |
| 所在地 | 村上市羽黒口1番2号(613番) |
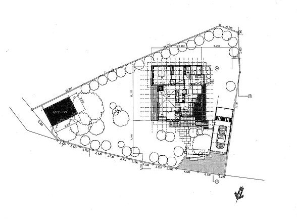
| 土地面積 | 814.33㎡(宅地 246.33坪) |
| 建物面積 | 1階105.36㎡ 2階29.67㎡ (約40.84坪) |
| 間取り | 1LDK 1F 洋室10帖、LDK22帖、WIC、物置、テラス 2F ロフト9.7帖、ロフト6帖 |
| 構造 | 木造 瓦葺 2階建 |
| 築年数 | 築8年(平成29年8月10日新築) |
| 地目 | 宅地 |
|---|---|
| 都市計画区域 | 未線引区域 |
| 用途地域 | 第1種低層住居専用地域 |
| 建ぺい率 | 50%以下 |
| 容積率 | 100%以下 |
| 道路 | 北側 市道(飯野門線)幅員16m 接道35.5m |
| 設備関係 | 公営水道、下水道、対面式カウンターキッチン、1階床暖房、薪ストーブ、エアコン、ウォークインクローゼット、テレビドアホン、都市ガス物件、車庫2台分、他駐車1台可 |
| 学区 | 村上小学校、村上東中学校 |
| 取引態様 | 仲 介【仲介手数料 税込891,000円】 |
| お引き渡し | ご相談の上 |
| 備考 | 広い敷地に立派な庭園。南東側の窓からはお城山が一望できます。 付帯設備も充実しており、とてもきれいな物件です。 築8年。部屋数は少ないのでご夫婦~小人数ご家族向きです。 シャッター付きのガレージ2台分付き。 広いリビングには床暖房、薪ストーブがあるので凍てつく冬も快適に過ごせます。(屋内に薪を保管できる物置があります。) 国道7号線まで車で3分。村上駅まで車で5分。 ご予約の上、内見可能です。 |
【周辺地図】
【 公図 】

【 間取図 】

【 配置図 】

【 玄 関 】

【 1階LDK 】


【 キッチン 】


【 1階洋室 】

【 1Fトイレ 】

【 バスルーム 】

【 洗面脱衣室 】

【 2F ロフト 】
